for sale House 143 m² in Roses (Santa Margarida) at 1500 meters from the sea
46 Photos
Exclusive house with a 10x4 m mooring and views of the natural park, canal, and sea in Roses
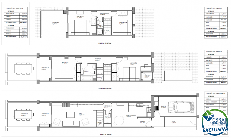
Discover this spectacular townhouse for sale in Santa Margarita, Roses, situated in a prime location with stunning views of the canal, the sea, the beach, and the Aiguamolls de l'Empordà Natural Park. The property has a private 10x4 meter mooring, with the ability to accommodate even longer boats, making it an ideal choice for boating enthusiasts. With a constructed area of 143 m², the house offers four spacious bedrooms and two bathrooms, plus a guest toilet on the ground floor, distributed in bright and functional spaces. The design skillfully combines traditional elements, bringing character and personality to every corner. The living area is characterized by its natural light, creating a warm and welcoming atmosphere. It is air-conditioned, as is the master bedroom, ensuring year-round comfort. The kitchen is fully equipped with appliances and ready for use. Private terraces allow you to enjoy the outdoors and unparalleled views of the natural surroundings, the canal, and the sea horizon. This property is an excellent opportunity for those seeking comfort, open views, and a direct connection to the sea and nature. Contact us for more information or to arrange a visit and discover everything this unique home has to offer.
General information:
Distance from the sea: 1.5 km
Orientation: Southwest
Plot: 0 m²
Built Surface: 143 m²
Useful surface: 102 m²
Condition: New
Preservation: New build
Features
4 bedrooms
2 bathrooms
0 w.c
House with 2 floors
Ground floor
Facade 0 m
0 places
Length: 0.00 m
Width: 0.00
Equipment and benefits
Garage
Mooring
Views
Sea views
Canal views
645.000 €
Available
Roses
(zone of Santa Margarida)
143 m²
4
bedrooms
2 bathrooms
Reference:
6325
Registro Certificado energético: NJZRJY4WB
Calificación: F
Consumo: 373 kWh/m² Emisiones: 63 Kg CO2/m²
Calificación: F
Consumo: 373 kWh/m² Emisiones: 63 Kg CO2/m²
)





